Regulador de presión de depósito SB

El regulador de presión para depósitos SB de Alfa Laval mantiene la presión de trabajo en el espacio de vapor, o en la parte superior, de un depósito de proceso durante el llenado, el procesamiento y el vaciado. Por lo general, el regulador se conecta directamente a la tubería de gas o a la tubería de limpieza in situ (CIP) que llega a la parte superior del depósito, o bien se integra en un panel de flujo.

SB tank pressure regulator

El regulador de presión del depósito mantiene y regula la presión máxima en los depósitos a presión durante el llenado, el procesamiento y el vaciado

  • Control fiable y constante de la presión del depósito
  • Ajuste de presión variable
  • Limpieza optimizada
  • Manómetro integrado
  • Se puede limpiar completamente con el sistema de limpieza in situ

Este regulador de presión suele utilizarse para regular la presión en los depósitos de los sectores lácteo, alimentario, de bebidas, cervecero y muchos otros. La válvula se integra fácilmente en el sistema de tapa de depósito SCANDI BREW® de Alfa Laval.

¿Cómo funciona el regulador de presión del depósito SB?

Construcción

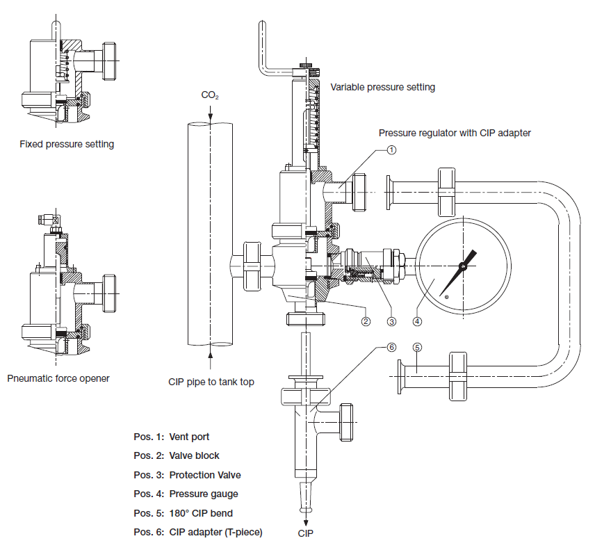
El principio del regulador de presión consiste en una unidad de válvula única que incorpora una válvula de descarga de presión, una válvula de suministro de presión y una conexión para un manómetro. El regulador de presión puede suministrarse con una válvula que incorpore diferentes versiones de la unidad de resorte/regulación:

  • Ajuste fijo (una sola presión)
  • Ajuste variable
  • Actuador neumático

El regulador de presión de la válvula se puede integrar en un sistema de montaje en la parte superior del depósito SCANDI BREW®.

Principio de funcionamiento

La unidad reguladora de presión de la válvula se suministra con un ajuste fijo o variable, que adapta la presión de alivio a la presión de trabajo requerida en el depósito. Cuando la presión en la parte superior del depósito supera la presión preestablecida, el regulador del depósito libera el gas a través del orificio de ventilación, ya sea para su descarga a la atmósfera o para su recogida. Si la presión en la parte superior del depósito disminuye, el gas se suministra a través de la conexión de suministro de gas situada en la parte inferior.

Limpieza in situ (CIP)

El depósito del regulador de presión debe limpiarse entre cada lote. Se integra en el procedimiento CIP del depósito mediante el adaptador CIP opcional. Antes de la limpieza, el adaptador CIP se monta en el regulador de presión del depósito; este abre a la fuerza la válvula de suministro de gas y la válvula de alivio de presión, lo que permite limpiarlas por completo. Durante el procedimiento CIP, todas las funciones quedan bloqueadas. Véase el esquema del regulador.

Control de presión seguro de la cisterna

Es fundamental mantener la presión de trabajo en la parte superior del depósito. El regulador de presión del depósito garantiza que la presión en el espacio de vapor de un depósito de proceso se mantenga siempre en el nivel óptimo. Esto garantiza la seguridad y la eficacia de sus procesos y protege la integridad del producto.

Diseño modular higiénico

Todos los componentes del regulador de presión de la válvula están fabricados con materiales higiénicos de alta calidad que cumplen con las estrictas normas de procesamiento de alimentos y bebidas. Su diseño modular ofrece la flexibilidad necesaria para adaptarse a la mayoría de los requisitos de instalación. La higiene está garantizada gracias al uso de un adaptador CIP que permite una limpieza completa.

Opciones

    • Adaptador CIP (pieza en T y codo de 180°)
    • Manómetro
    • Válvula de protección para el manómetro cuando la presión CIP supera el rango del manómetro
    • Soportes de montaje
    • Dispositivo de apertura forzada
    • Soporte de montaje en la parte trasera del bloque de válvulas

Catálogo «A mano»

Close at hand brochure

 

El catálogo de productos de higiene «A mano» incluye folletos de productos, enlaces a animaciones, catálogos y listas para realizar pedidos.

Find an Alfa Laval product

Portal CAD

 

CAD_portal_block_image.jpg

 

El portal CAD de Alfa Laval es una plataforma esencial para descargar información detallada sobre productos, planos en 2D y modelos de productos en 3D.

Visita el portal CAD

 

Servicios y piezas


Nuestra red global de servicio dedicada le brinda asistencia con repuestos y experiencia, dondequiera que se encuentre y cuando lo necesite. Al garantizar un mayor tiempo de actividad, disponibilidad y optimización, le ayudamos a estar tranquilo y a maximizar el retorno de su inversión. Podemos trabajar con usted para integrar nuestros servicios en un contrato de servicio de Alfa Laval para que disfrute de un funcionamiento predecible y sin preocupaciones.

Más información sobre nuestra oferta de servicio                                       Solución de problemas

Piezas de repuesto                                                                                       Asistencia técnica

Búsqueda por número de serie                                                                     Certificación

 

How can we help you?Póngase en contacto con nosotros si tiene alguna duda o pregunta.

Contáctenos

Visita el Centro de Aplicaciones e Innovación

 

Application and Innovation Centre_Kolding_Customer test centre_640x340x2.png

¿Desea identificar el equipo óptimo para el trabajo y descubrir ahorros tangibles antes de decidirse por una actualización? En el Centro de Aplicaciones e Innovación de Alfa Laval, puede hacerlo.

Mäs información

Optimize™ de Alfa Laval

 

optimize-preview-image640x360.jpg

Optimize™ de Alfa Laval mejora sus procesos actuales y permite ahorrar hasta un 90 % en agua, energía y productos químicos con inversiones mínimas y sin riesgos.

 

Leer más 

Product Catalogue Image

Encuentra los productos que buscas

El catálogo digital de productos de Alfa Laval te permite encontrar y seleccionar fácilmente los productos que necesitas. Cuando solicites un presupuesto, el catálogo te mostrará los socios de Alfa Laval en tu región, y podrás enviar tu solicitud directamente.

Ir al catálogo de productos

También podría interesarle...

.

Suscríbete - near Newsletter

Manténgase actualizado sobre oportunidades importantes relacionadas con la sostenibilidad en su sector y sus procesos

Suscríbete hoy

Animaciones

Visite el sitio de las animaciones y observe el interior de un producto para ver y entender cómo funciona. 

 

Ver animaciones 

White paper, artículos técnicos

White paper thumbnail.png

White paper - Artículos técnicos sobre equipos higiénicos

.